Summary: a purpose built three bedroom semi-detached bungalow with garage and driveway. positioned in a cul-de-sac, the property is located within easy reach of the mid kent shopping centre and is just a short drive from maidstone town centre and the m20 motorway. accommodation comprises entrance lobby, spacious reception room, fitted kitchen, three bedrooms and a shower room. features to note include double-glazing and gas-fired central heating. offered with no forward chain we highly recommend your earliest appointment to view.
Property Details
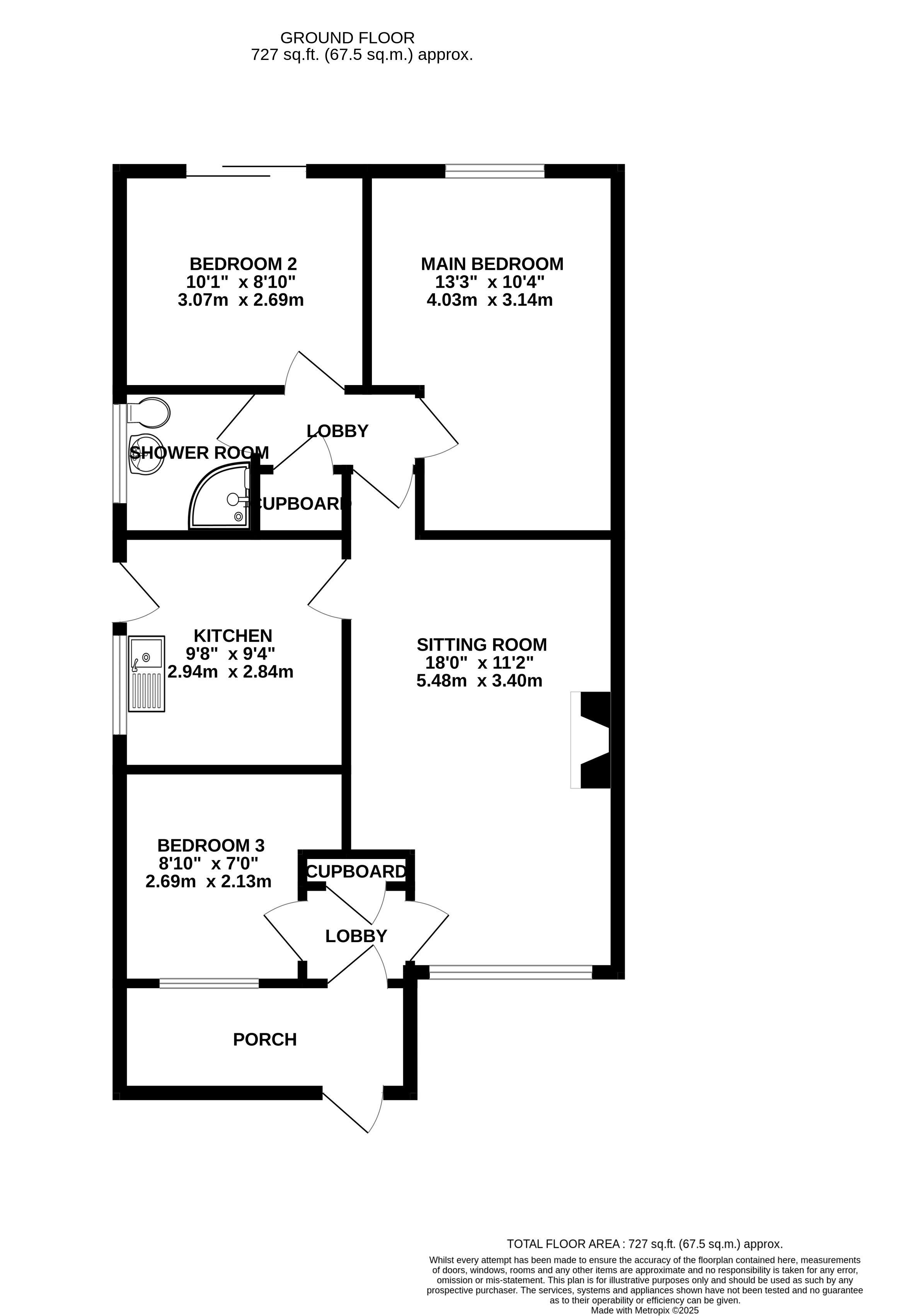
SUMMARY: A purpose built three bedroom semi-detached bungalow with garage and driveway. Positioned in a cul-de-sac, the property is located within easy reach of the Mid Kent Shopping Centre and is just a short drive from Maidstone town centre and the M20 motorway. Accommodation comprises entrance lobby, spacious reception room, fitted kitchen, three bedrooms and a shower room. Features to note include double-glazing and gas-fired central heating. Offered with no forward chain we highly recommend your earliest appointment to view.
ACCOMMODATION
ENTRANCE PORCH: Door to :
ENTRANCE LOBBY: Built-in cupboard.
BEDROOM THREE: Front facing.
RECEPTION ROOM: Front facing. Fireplace.
KITCHEN: Matching wall and base units with worksurfaces over. Wall mounted boiler. Space for appliances. Inset sink.
REAR LOBBY: Built-in airing cupboard.
BEDROOM ONE: Rear facing.
BEDROOM TWO: Rear facing. Doors to garden.
SHOWER ROOM: Shower cubicle. WC. Wash hand basin.
OUTSIDE
TO FRONT: Driveway providing ample parking.
GARAGE: Up and over door.
TO REAR: Low maintenance.
Council Tax band D.
Viewing by appointment only via our Allington Office on: 01622 693611
ALL OUR PROPERTIES CAN BE VIEWED ON:
www.hatchbatten.co.uk
Floor Plans
Energy Performance Certificates
Arrange a Viewing
Thank you for contacting us! We will come back to you as soon as possible.